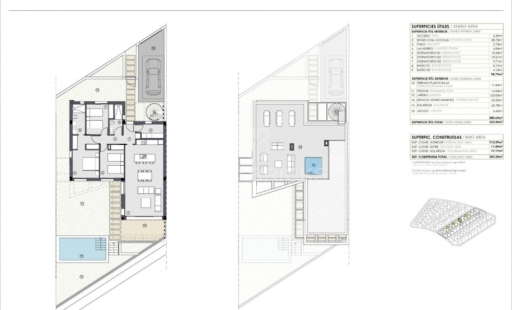
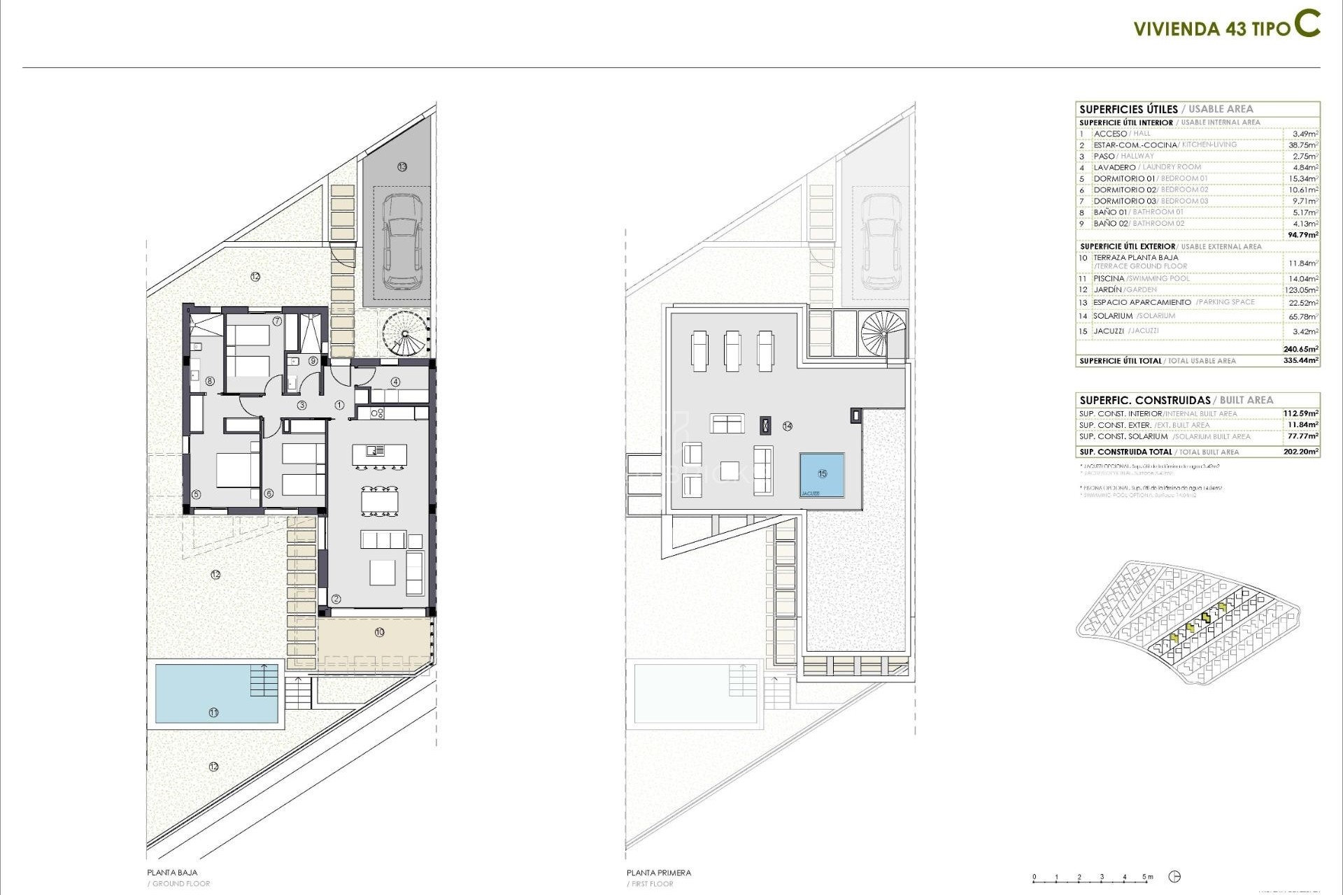
NEU GEBAUTE VILLEN IN POLOP Der Neubau von Villen in Polop bietet Ihnen einen Raum, in dem Sie den mediterranen Lebensstil in vollen Zügen genießen können. Wählen Sie zwischen Villen mit 2 und 3 Schlafzimmern in Polop, die die Essenz des Mittelmeers einfangen und die Umwelt im Außenbereich genießen. Die Highlights dieses Projekts sind die atemberaubenden Panoramablicke auf zwei einzigartige Orte: die Bucht von Altea mit ihrem tiefblauen Meer und die majestätischen Berge von Alicante mit ihren Gipfeln und ihrer Vegetation. Lassen Sie sich von diesen unglaublichen Aussichten von den Terrassen dieser Häuser in Polop hypnotisieren, die auch über große Räume verfügen, die Sie dazu einladen, das außergewöhnliche Klima der Costa Blanca zu nutzen und die Sie nach Ihren Wünschen gestalten können. Die Abmessungen sind ideal für die Installation von Tischen, Stühlen, Sonnenliegen oder anderen Außenmöbeln, die Sie wünschen. Das Projekt ist so konzipiert, dass man den Außenbereich genießen kann, nicht nur mit Terrassen, sondern auch mit Gärten, Veranden und Solarien in jedem Haus. Darüber hinaus bieten die meisten Häuser in Polop die Möglichkeit, einen privaten Swimmingpool hinzuzufügen (Infinity oder nicht, abhängig von den Eigenschaften des Grundstücks). Diejenigen, die sich für ein einstöckiges Haus entscheiden, können auch einen Whirlpool auf der Sonnenterrasse einbauen lassen. Die Aufteilung dieser Villen ist so konzipiert, dass sie Ihnen im täglichen Leben Komfort bietet, mit voll ausgestatteten Küchen mit offenem Konzept, einschließlich Herd, Induktionskochfeld, Backofen, Dunstabzugshaube und Spülbecken. Die Bäder sind ebenfalls ausgestattet. Bei allen Einheiten ist ein Parkplatz im Preis inbegriffen. Die Lage ist ein Luxus. Sie befinden sich nur 5 Minuten vom Zentrum von "Polop de la Marina" entfernt, einem charmanten Dorf, das Tradition mit einer breiten Palette von Dienstleistungen verbindet: Restaurants, Geschäfte, Supermärkte, Banken, Krankenhäuser und alles, was Sie für Ihr tägliches Leben brauchen. Ganz in der Nähe der Villen finden Sie zahlreiche Wander- und Mountainbike-Routen sowie ein Sportzentrum mit Paddle-Tennisplätzen. Und für Golfliebhaber sind renommierte Golfplätze wie Villaitana Golf, weniger als 15 Autominuten entfernt, nur einen Katzensprung entfernt. Und das ist noch nicht alles! Nur 5 Autominuten entfernt befindet sich einer der größten Sportkomplexe Spaniens im Bau: "Ciudad del Deporte La Nucia". Dort befinden sich bereits die prestigeträchtige Ferrer-Tennisakademie und das Olympiastadion Camilo Cano. Zu diesem sich entwickelnden Komplex gehören ein Fußballzentrum, der größte Surfpark Spaniens mit Wellenbecken, Unterkünften für Sportler und Bildungszentren. Nicht zu vergessen sind die atemberaubenden Strände der Costa Blanca, die sich über 244 Kilometer Küstenlinie erstrecken, und das schöne Altea, eines der malerischsten Dörfer des Landes. Darüber hinaus finden Sie hier erstklassige Golfplätze und Infrastrukturen wie den Flughafen Alicante-Elche Miguel Hernandez, der nur 50 Autominuten entfernt ist. 402