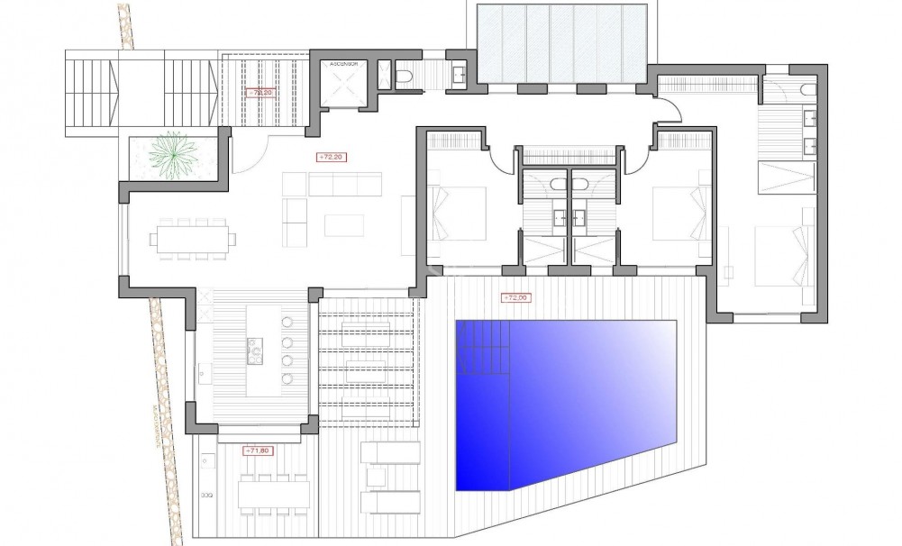
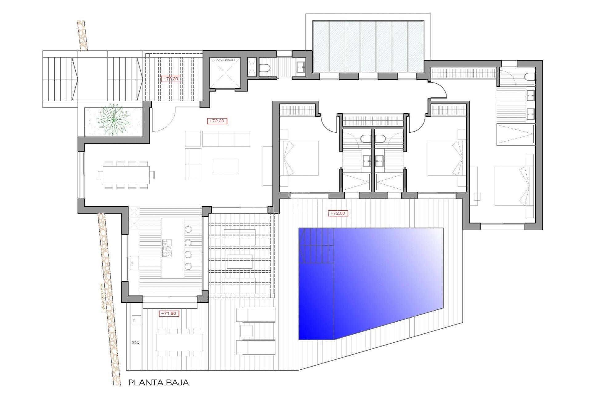
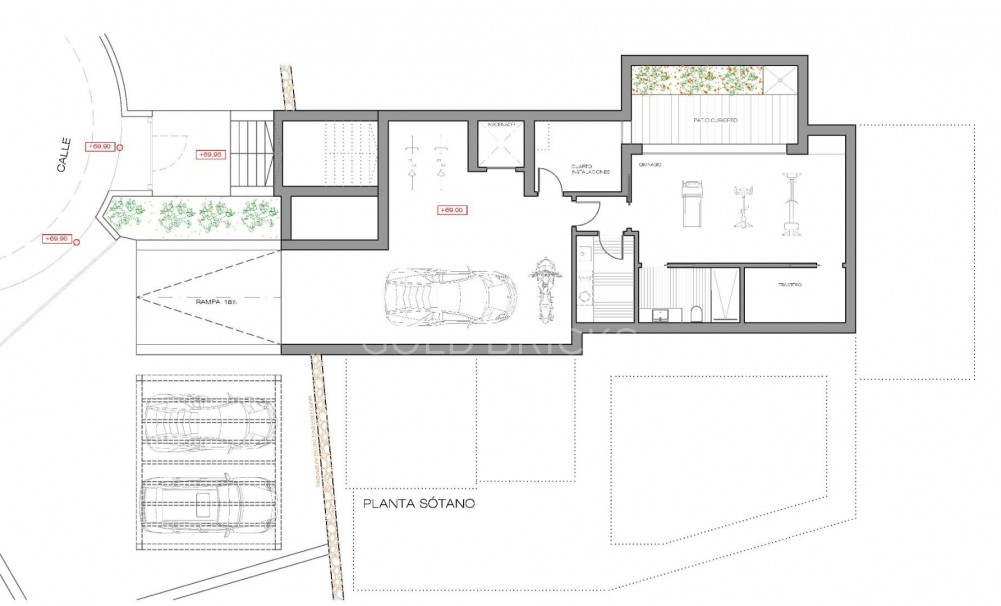
Nieuwbouwwoning in Ibiza-stijl met luxe voorzieningen in Javea Exclusief mediterraan ontwerp vlakbij het strand van El Arenal Deze prachtige nieuwbouwwoning in Ibiza-stijl in Javea ligt op slechts 3 km van het beroemde strand van El Arenal, een van de meest levendige en aantrekkelijke gebieden van de Costa Blanca Noord. De woning ligt in een rustige en goed bereikbare woonwijk en biedt een uitzonderlijke combinatie van elegantie, comfort en moderne mediterrane architectuur. Javea staat bekend om zijn kristalheldere water, pittoreske baaien, natuurparken, jachthavens en uitstekende eetgelegenheden, waardoor het een zeer gewilde bestemming is om te wonen en te investeren. Elegante indeling over twee verdiepingen De villa is zorgvuldig ontworpen om comfort en stijl te maximaliseren. Op de begane grond sluit een ruime woon- en eetkamer naadloos aan op een volledig uitgeruste keuken, waardoor een lichte en uitnodigende open ruimte ontstaat. Op deze verdieping bevinden zich ook een lift voor extra gemak, een gastentoilet en een centrale hal die alle ruimtes met elkaar verbindt. Er zijn twee tweepersoonsslaapkamers met en-suite badkamers, plus een indrukwekkende hoofdslaapkamer met een grote indeling, een en-suite badkamer en een ingebouwde inloopkast. Buitenleven Ontworpen voor de mediterrane levensstijl De buitenruimtes zijn ontworpen om het hele jaar door te kunnen genieten van het warme klimaat van Javea. De woning beschikt over twee elegante pergola's, één bij de ingang en één die zich uitstrekt van de woonkamer en keuken naar het open terras rondom het privézwembad van 38 m2. Naast de keuken biedt een extra terras met barbecue de perfecte omgeving voor buiten dineren en gezellige bijeenkomsten. Luxe kelder met uitzonderlijke voorzieningen De kelderverdieping combineert functionaliteit en luxe, met een open garage, lift, bijkeuken, wasruimte, fitnessruimte, overdekt terras, badkamer en een ruime opslagruimte. Deze verdieping is ontworpen om aan de moderne woonbehoeften te voldoen en tegelijkertijd maximaal comfort te bieden. Toplocatie in Javea Javea biedt een unieke mix van natuurschoon, recreatiemogelijkheden en hoogwaardige diensten. Belangrijkste afstanden vanaf de villa: El Arenal-strand 3 km Haven en jachthaven van Javea 7 km Golfclub van Javea 3 km Luchthaven van Alicante 100 km Luchthaven van Valencia 125 km Uw mediterrane thuis wacht op u Of u nu op zoek bent naar een permanente woning, een luxe vakantiehuis of een uitstekende investeringsmogelijkheid, deze villa biedt uitstekende kwaliteit en een onovertroffen locatie. Neem vandaag nog contact met ons op om een bezichtiging te regelen en uw nieuwe thuis in Javea te ontdekken.